1 110,00 € cc

Appartement nu à louer

Appartement nu à louer

Rue Barre 77230 Juilly
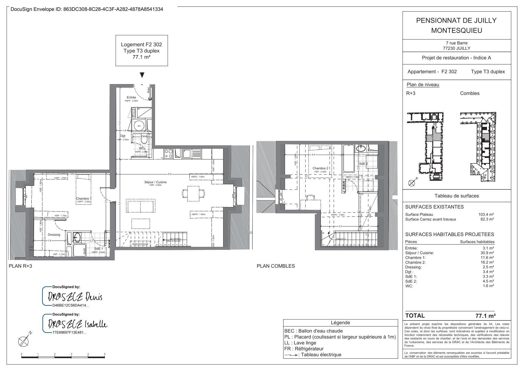
3 pièces 77.1 m2
Référence : 51527
1 110,00 € cc
14,40 € m²

Conditions de location

1 110,00 € / mois cc

Charges
120,00 €
Dépôt de garantie
990,00 €
Honoraires agence
848,10 € TTC
Disponibilité
Dès maintenant
Durée du bail
3 ans
Colocation
Non

Informations

2 chambres
Étage : 3
1 salle d'eau
1 douche
1 WC
2 parkings
Copropriété
Construit Avant 1946

Description

Avec son charme pittoresque et son ambiance sereine, Juilly est l'endroit idéal pour échapper à l'agitation urbaine.
Situé dans un cadre exceptionnel, entre richesses architecturales et parcs remarquables, le plus ancien pensionnat de France, fondé en 1638 sur Ordre de Louis XIII, vient tout juste d'être réhabilité en logements d'exceptions.
A seulement 5' en voiture de la Gare "Dammartin-Juilly-St Mard" (ligne K et TER) reliant Paris Gare du Nord en 30 minutes. A proximité des Aéroports Roissy-Charles de Gaulle et du Bourget.
Un appartement de type T3 (F2-302) en duplex d'une surface de 77,10 m2 situé au 3ème étage.
Il est composé d'une entrée, d'un séjour ouvert sur une cuisine aménagée et équipée (plaques de cuisson, four et hotte), de deux chambres et d'une salle d'eau avec wc.

2 emplacements de parking extérieur sécurisé.


Merci de déposer votre dossier complet sur votre profil FLATBAY afin qu'il soit au préalable étudié. Si ce dernier répond aux critères : Revenus : 3 x le montant du loyer CC) vous recevrez une invitation de visite. Tout dossier incomplet sera refusé.
Les dossiers garants sont acceptés uniquement pour les statuts étudiants.
Mis à jour le 11/12/2025

Équipements

Plaques de cuisson
Four
Hotte Aspirante

Relevés techniques

Traversant
Non
Vitrage
Double

Diagnostic de performance énergétique : Vierge

Production eau chaude
Individuel Électrique

Production chauffage
Individuel Électrique


Les informations sur les risques auxquels ce bien est exposé sont disponibles sur le site Géorisques : www.georisques.gouv.fr