569,95 € cc

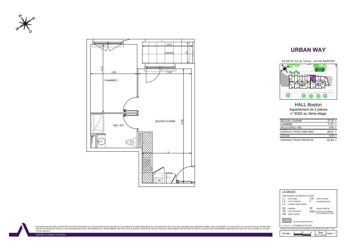
URBAN WAY B302 - 2 pièces Nantes

URBAN WAY B302 - 2 pièces Nantes

65 Boulevard du Tertre 44100 Nantes
2 pièces 38.57 m2
Référence : 2707
569,95 € cc
14,78 € m²

Conditions de location

569,95 € / mois cc

Charges
50,00 €
Dépôt de garantie
519,95 €
Honoraires agence
506,04 € TTC *
Disponibilité
Dès maintenant
Durée du bail
3 ans
Colocation
Non

* Dont 116,87 € TTC pour la réalisation de l'état des lieux

Informations

1 chambre
Étage : 3
1 salle d'eau
1 douche
1 WC
Bâtiment de : 4 étages
1 parking
Ascenseur
Balcon
Copropriété
Construit Après 1990

Description

NANTES – URBAN WAY

Joli T2 de 38,57m² à louer dans une résidence récente. Le logement est loué avec une place de parking.

Il dessert une cuisine ouverte sur séjour attenante sur une loggia, 1 chambre et une salle d'eau avec wc.
Proche de toutes les commodités.

Loyer de 569,95€ dont 50€ de charges
Dépôt de garantie de 519,95€ (=1 mois de loyer hors charges)
Honoraires à la charge du locataire de 506.04€ dont 116.87€ pour l'établissement de l'état des lieux.

Chauffage individuel gaz

Candidature à déposer sur flatbay

“Les informations sur les risques auxquels ce bien est exposé sont disponibles sur le site Géorisques : www.georisques.gouv.fr”.
Mis à jour le 04/02/2026

Transports en commun

Ligne 1
Tertre
à 161 m

Inclus dans les charges

Entretien bâtiment

Relevés techniques

Traversant
Non
Vitrage
Double

DPE : 87
A
B
C
D
E
F
G
GES : 15
A
B
C
D
E
F
G
Diagnostic réalisé le: 19/03/2025

Production eau chaude
Individuel Gaz

Production chauffage
Individuel Gaz


Les informations sur les risques auxquels ce bien est exposé sont disponibles sur le site Géorisques : www.georisques.gouv.fr

État et prestations

État général
Bon