517,00 € cc

Appartement nu à louer

Appartement nu à louer

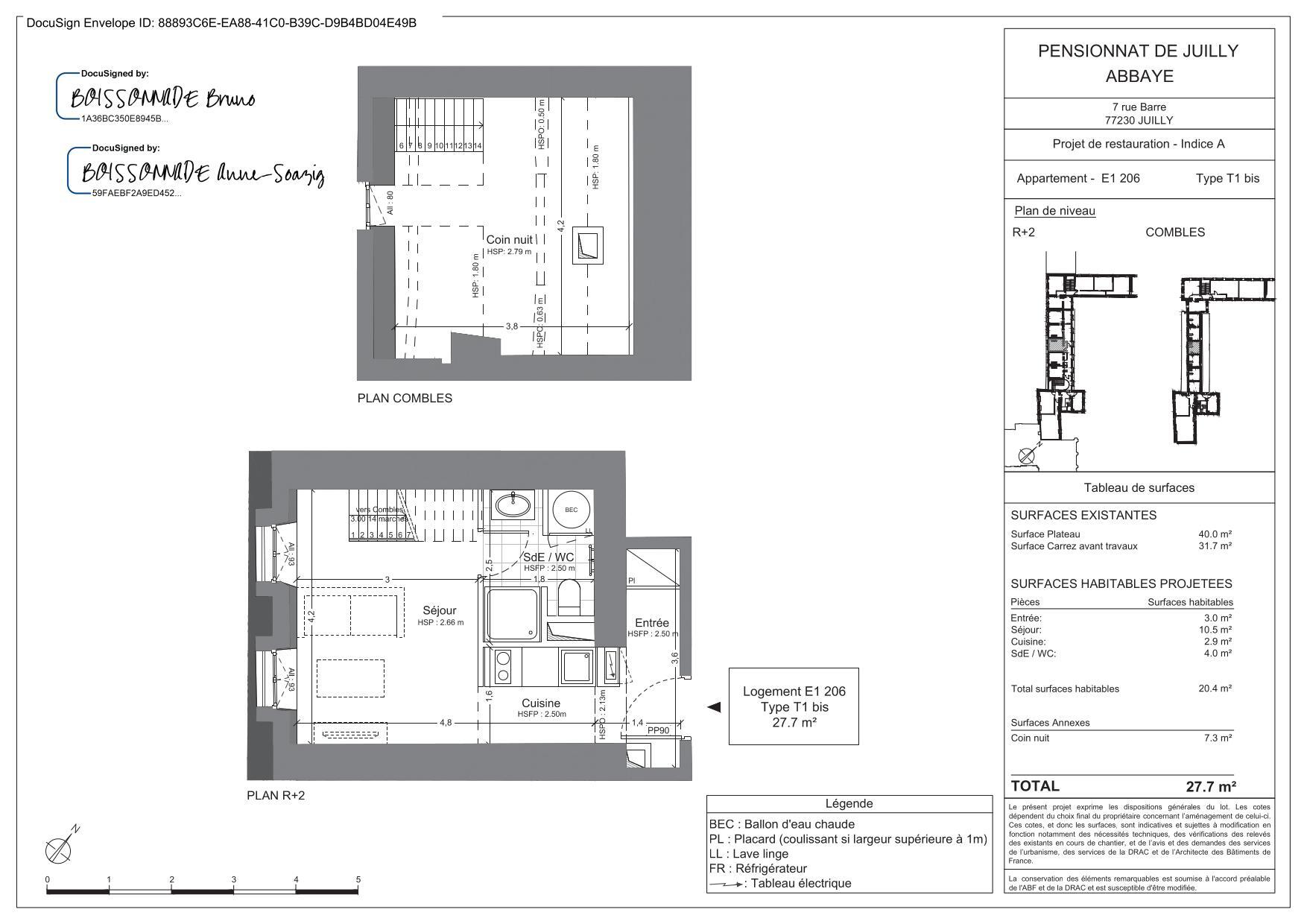
9 Rue Barre 77230 Juilly
1 pièce 27.7 m2
Référence : 30163
517,00 € cc
18,66 € m²

Conditions de location

517,00 € / mois cc

Charges
47,00 €
Dépôt de garantie
470,00 €
Honoraires agence
307,47 € TTC
Disponibilité
Dès maintenant
Durée du bail
3 ans
Colocation
Non

Informations

Étage : 2
1 salle d'eau
1 WC
1 parking
Copropriété
Construit Avant 1946

Description

Avec son charme pittoresque et son ambiance sereine, Juilly est l'endroit idéal pour échapper à l'agitation urbaine.
Situé dans un cadre exceptionnel, entre richesses architecturales et parcs remarquables, le plus ancien pensionnat de France, fondé en 1638 sur Ordre de Louis XIII, vient tout juste d'être réhabilité en logements d'exceptions.
A seulement 5' en voiture de la Gare "Dammartin-Juilly-St Mard" (ligne K et TER) reliant Paris Gare du Nord en 30 minutes. A proximité des Aéroports Roissy-Charles de Gaulle et du Bourget.
Un appartement de type T1 BIS d'une surface de 27,70m²situé au 2éme étage.
Il est composé: d'une séjour ouvert sur une cuisine aménagée et équipée, d'une alcôve, d'une salle d'eau avec wc.

1 emplacement de parking extérieur sécurisé.


Merci de déposer votre dossier complet sur votre profil FLATBAY afin qu'il soit au préalable étudié. Si ce dernier répond aux critères : Revenus : 3 x le montant du loyer CC) vous recevrez une invitation de visite. Tout dossier incomplet sera refusé.
Les dossiers garants sont acceptés uniquement pour les statuts étudiants.
Mis à jour le 03/02/2026

Inclus dans les charges

Entretien bâtiment
Eau froide

Relevés techniques

Traversant
Non
Vitrage
Double

Diagnostic de performance énergétique : En cours

Production eau chaude
Individuel Électrique

Production chauffage
Individuel Électrique


Les informations sur les risques auxquels ce bien est exposé sont disponibles sur le site Géorisques : www.georisques.gouv.fr