592,00 € cc

MANOIR PERSAGOTIERE 204 - 1 pièce Nantes

MANOIR PERSAGOTIERE 204 - 1 pièce Nantes

30 Rue Frère Louis 44200 Nantes
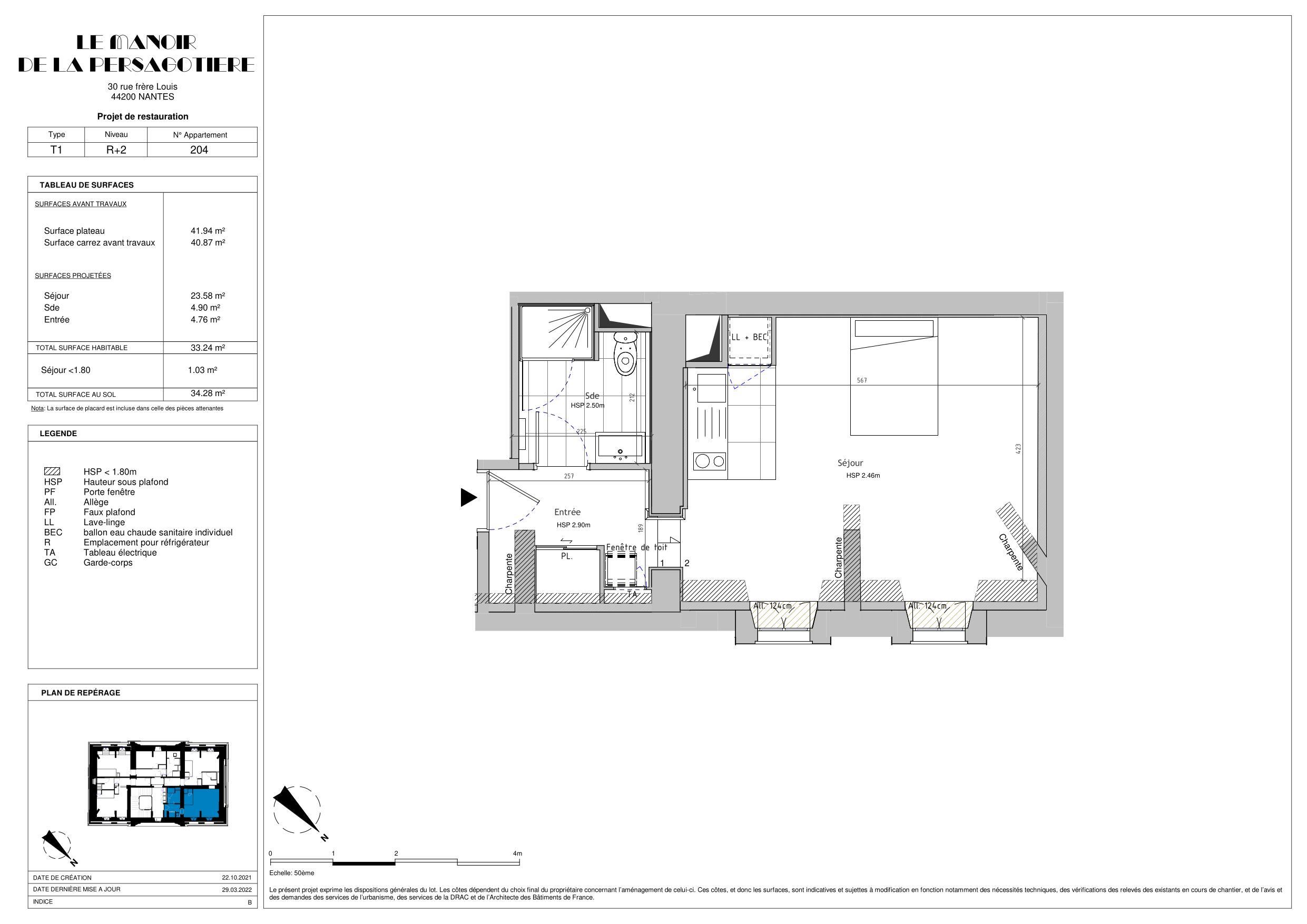
1 pièce 33.43 m2
Référence : 82426
592,00 € cc
17,71 € m²

Conditions de location

592,00 € / mois cc

Charges
82,00 €
Dépôt de garantie
510,00 €
Honoraires agence
434,59 € TTC *
Disponibilité
Disponible le 15/12
Durée du bail
3 ans
Colocation
Non

* Dont 100,29 € TTC pour la réalisation de l'état des lieux

Informations

Étage : 2
1 salle d'eau
1 douche
1 WC
Bâtiment de : 3 étages
1 cave
Jardin
Local à vélo
Copropriété
Construit Avant 1946

Description

NANTES - Résidence Le Manoir de la Persagotière - 204

Agréable logement 1 pièce dans une résidence neuve réhabilitée, charme de l'ancien.
Le logement, d'une surface de 33.43m² dispose de beaux volumes et d'une belle hauteur sous plafond.
Il dessert une entrée avec placard, une pièce de vie principale, un coin cuisine aménagé ainsi qu'une salle d'eau avec WC.

Le logement est loué avec une cave privée.

Il est situé dans un agréable immeuble rénové, prestations de qualité et résidence calme.
Proche des commodités.

Loyer de 592€ Charges Comprises (dont 82€ de provisions sur charges)
Dépôt de garantie de 510€
Honoraires de location de 434.59€ dont 100.29€ pour l'établissement de l'état des lieux

Candidature à déposer sur Flatbay

“Les informations sur les risques auxquels ce bien est exposé sont disponibles sur le site Géorisques : www.georisques.gouv.fr”.
Mis à jour le 11/12/2025

Équipements

Plaques de cuisson
Réfrigérateur

Relevés techniques

Orientation
Nord
Traversant
Non
Vitrage
Double

DPE : 181
A
B
C
D
E
F
G
GES : 5
A
B
C
D
E
F
G
Diagnostic réalisé le: 21/10/2025

Production eau chaude
Individuel Électrique

Production chauffage
Individuel Électrique


Les informations sur les risques auxquels ce bien est exposé sont disponibles sur le site Géorisques : www.georisques.gouv.fr

État et prestations

État général
Excellent

Cuisine
Prestations
État
Salles de bain
Prestations
État
Sol(s)
Prestations
État
Fenêtres
Prestations
État