703,80 € cc

Studio nu à louer

Studio nu à louer

187 Avenue Henri Barbusse 93700 Drancy
1 pièce 34.65 m2
Référence : 8699
703,80 € cc
20,31 € m²

Conditions de location

703,80 € / mois cc

Charges
95,00 €
Dépôt de garantie
608,80 €
Honoraires agence
450,45 € TTC
Disponibilité
Disponible le 01/01
Durée du bail
3 ans

Informations

Étage : RDC
1 salle d'eau
1 WC
Terrasse
1 parking
Copropriété
Construit Neuf

Description

Av Henri Barbusse, dans une résidence récente proche de toutes commodités.

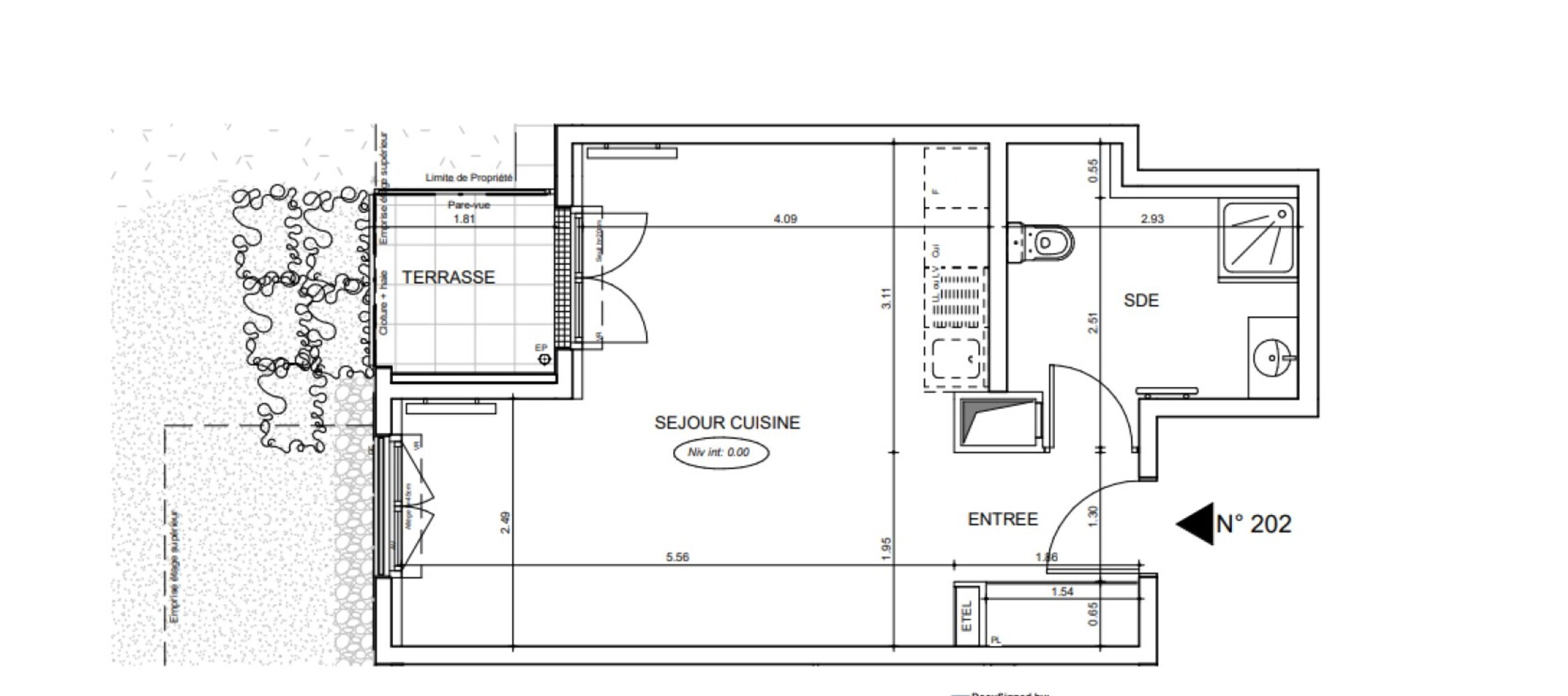
Un studio (202) d'une surface de 34.65m² situé au rez-de-chaussée comprenant : une entrée, un séjour ouvert sur un coin cuisine et une salle d'eau avec WC.

Une terrasse d'une surface de 3,26m².

Un emplacement parking en sous-sol (1030).


Dispositif PINEL

Disponible à partir du 1er janvier 2026.
Mis à jour le 11/12/2025

Relevés techniques

DPE : 96
A
B
C
D
E
F
G
GES : 20
A
B
C
D
E
F
G
Diagnostic réalisé le: Non renseigné

Production eau chaude
Collectif

Production chauffage
Collectif


Les informations sur les risques auxquels ce bien est exposé sont disponibles sur le site Géorisques : www.georisques.gouv.fr

État et prestations

État général
Bon