1 099,00 € cc
23,01 € / m²

Appartement nu à louer

Appartement nu à louer

448 Avenue de la Division Leclerc 92290 Châtenay-Malabry
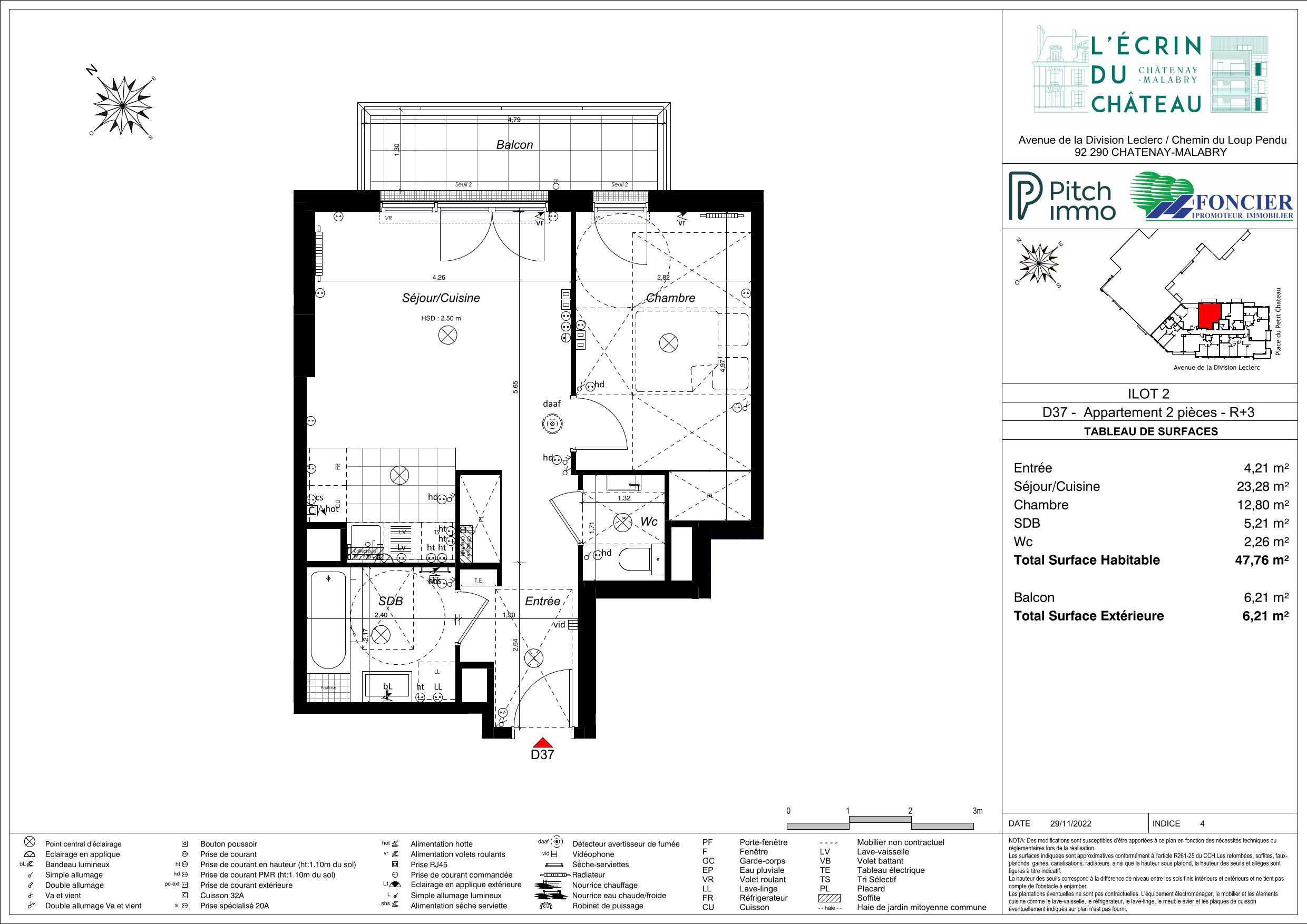
2 pièces 47.76 m2
Référence : 94353
1 099,00 € cc
23,01 € / m²

Conditions de location

1 099,00 € / mois cc

Charges
129,00 €
Dépôt de garantie
970,00 €
Honoraires agence
360,00 € TTC
Disponibilité
Dès maintenant
Durée du bail
3 ans
Colocation
Non

Informations

1 chambre
Étage : 3
1 salle d'eau
1 baignoire
1 WC
Ascenseur
Balcon
Copropriété
Construit Neuf

Description

Avenue de La Division Leclerc, la nouvelle résidence L'Ecrin du Château vous séduira par son architecture noble et ses prestations raffinées.
Un cadre de vie qui conjugue praticité et sérénité.
Toutes les commodités sont à portée de main : Tramway ligne 10 au pied d'immeuble, nombreuses lignes de bus, commerces de bouches, établissements scolaires, espaces verts comme la forêt domaniale de Verrières, le parc de Sceaux ou le parc de la Vallée aux Loups.

Découvrez ce bel appartement neuf, au troisième étage avec ascenseur, offrant un cadre de vie idéal pour les citadins à la recherche de confort et de fonctionnalité. Avec une surface totale de 47.76 m², ce bien lumineux se compose : d'une entrée avec placard, d'un séjour avec une cuisine aménagée et équipée en plaques, four micro-ondes, hotte et réfrigérateur, une chambre avec placard, une salle de bains avec wc.
Un balcon.
(pas de parking)

Appartement neuf : première occupation

Merci de déposer votre dossier complet sur notre plateforme sécurisé. Pas de dossier Garant, excepté pour les étudiants. Après étude des dossiers, nous contacterons les personnes éligibles pour convenir d’une visite.
Mis à jour le 15/05/2026

Équipements

Plaques de cuisson
Micro-ondes
Réfrigérateur
Hotte Aspirante

Inclus dans les charges

Chauffage
Eau chaude

Relevés techniques

DPE : 84
A
B
C
D
E
F
G
GES : 17
A
B
C
D
E
F
G
Diagnostic réalisé le: Non renseigné

Production eau chaude
Collectif

Production chauffage
Collectif


Les informations sur les risques auxquels ce bien est exposé sont disponibles sur le site Géorisques : www.georisques.gouv.fr

État et prestations

État général
Excellent