985,72 € cc
15,85 € / m²

Appartement nu à louer

Appartement nu à louer

28 Rue Lafontaine 69100 Villeurbanne
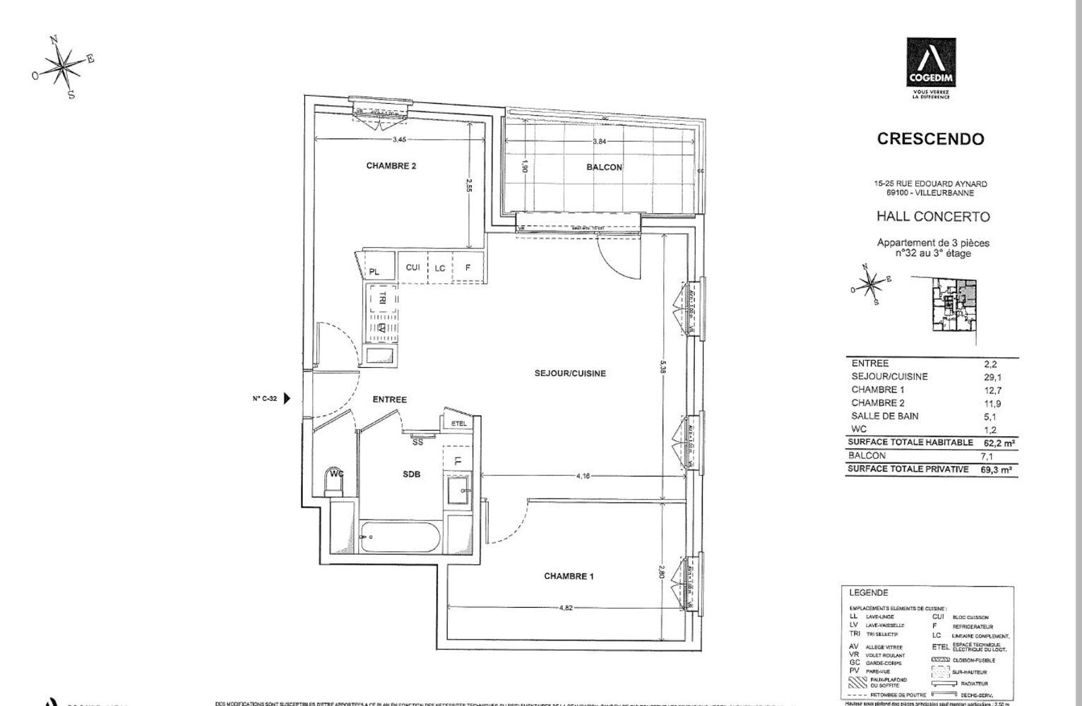
3 pièces 62.2 m2
Référence : 6535
985,72 € cc
15,85 € / m²

Conditions de location

985,72 € / mois cc

Charges
110,00 €
Dépôt de garantie
875,72 €
Honoraires agence
816,07 € TTC *
Disponibilité
Disponible le 09/05
Durée du bail
3 ans
Colocation
Acceptée

* Dont 188,47 € TTC pour la réalisation de l'état des lieux

Informations

2 chambres
Étage : 3
1 salle d'eau
1 WC
1 cave
Ascenseur
Balcon
Local à vélo
1 Box (garage fermé)
Copropriété
Construit Neuf

Description

VILLEURBANNE / Secteur FERRANDIERE-TOTEM / RUE LAFONTAINE - RUE RICHELIEU - RUE FREDERIC PASSY
A 15 minutes à pieds de la gare part-dieu.
Bus à proximité (ligne C3), à 2 pas du Cours Tolstoï et de ses nombreux commerces et écoles, cet appartement est situé à 10-15 minutes du périphérique en voiture.

Appartement NEUF de type 3 de 62,2 m² au 3ème étage, exposé Nord-Est, composé d'un séjour/cuisine de 29,1m² meublée et équipée (plaques de cuisson, hotte, four), d'une première chambre de 12,7 m² et une seconde de 11,9 m², d'une salle de bains et d'un WC séparés, ainsi que d'un balcon de 7,1 m². Un box et une cave complètent cette prestation.
Eau chaude et chauffage collectifs au gaz.

Loyer de 875,72 € + 110, 00 € de provisions sur charges (garage inclus)

Ce bien immobilier est situé dans une zone soumise à l’encadrement des loyers
Loyer de référence : 13,10€ soit 814,82€/m²
Loyer de référence majoré : 15,70€ soit 976,54€/m²

Disponible immédiatement.

Conditions de location : revenus équivalent à 3 mois de loyers charges comprises. Plafonds de ressources à respecter (loi Pinel). Pas de garants demandés, sauf pour les candidats étudiants.
Dossier de candidature et inscription visite à effectuer sur la plateforme FLATBAY.
Mis à jour le 16/04/2026

Équipements

Plaques de cuisson
Four
Hotte Aspirante

Inclus dans les charges

Entretien bâtiment
Chauffage
Eau chaude

Relevés techniques

Orientation
Nord-Est
Traversant
Non

DPE : 83
A
B
C
D
E
F
G
GES : 28
A
B
C
D
E
F
G
Diagnostic réalisé le: Non renseigné

Production eau chaude
Collectif

Production chauffage
Collectif


Les informations sur les risques auxquels ce bien est exposé sont disponibles sur le site Géorisques : www.georisques.gouv.fr

État et prestations

État général
Bon

Zone soumise à l'encadrement des loyers

Loyer de base
814,82 €
Loyer de référence majoré *
814,82 €
Complément de loyer
60,90 €
* Loyer de base à ne pas dépasser